Connect With Us
HOME
TYPICAL PROJECTS
MISCELLANEOUS 3D MODELS & PROJECTS
CONTACT
-
Delta Engineering SE
Mechanical and Ocean Solutions
.
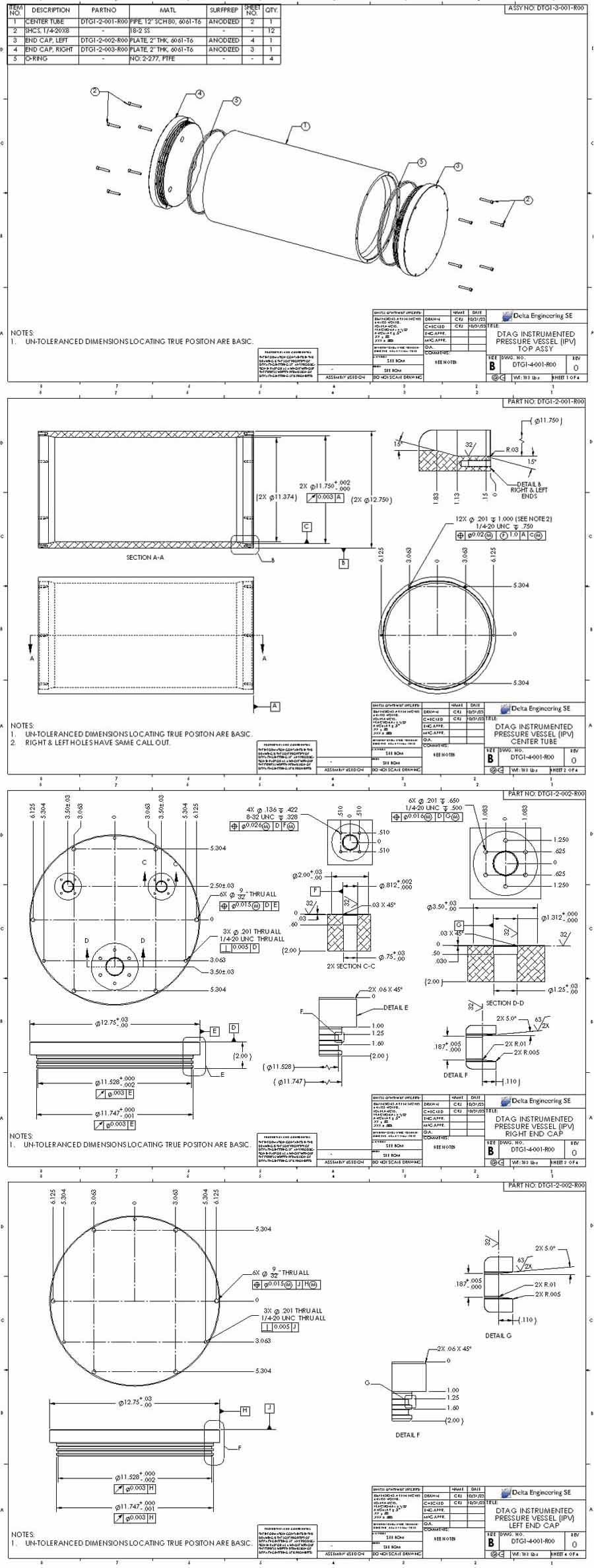
IPV Assembly & Detail CAD Drawings
.
Connect With Us