Connect With Us

Delta Engineering SE
Mechanical and Ocean Solutions

.

Floor CAD Drawings Produced With SolidWorks 3D Modeling Software

.

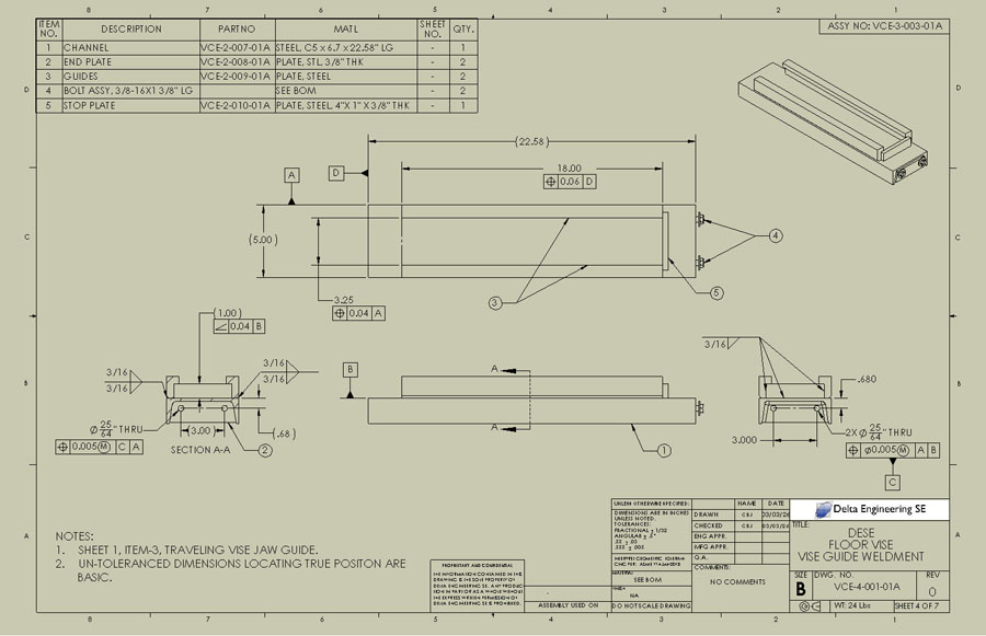
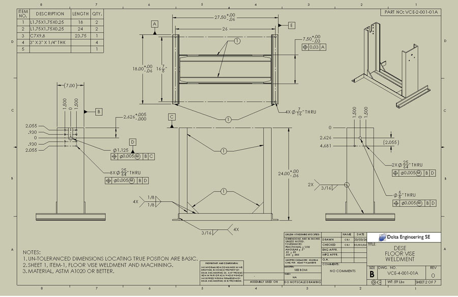
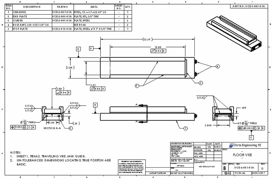
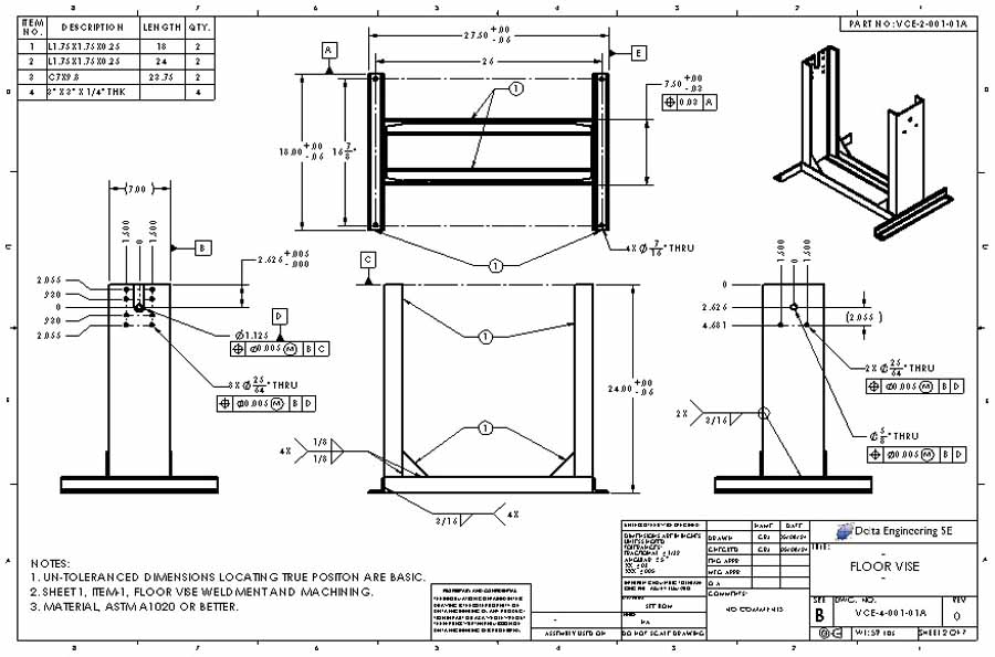
The Floor Vise shown below is an example of mechanical equipment that can be designed for you at Delta Engineering SE (DESE). The CAD drawings needed to build this Floor Vise are shown below. SolidWorks is used for all of CAD work at DESE. Creating CAD drawings only requires 2D drawings or sketches of your products.

.

.