Connect With Us

Delta Engineering SE
Mechanical and Ocean Solutions

.

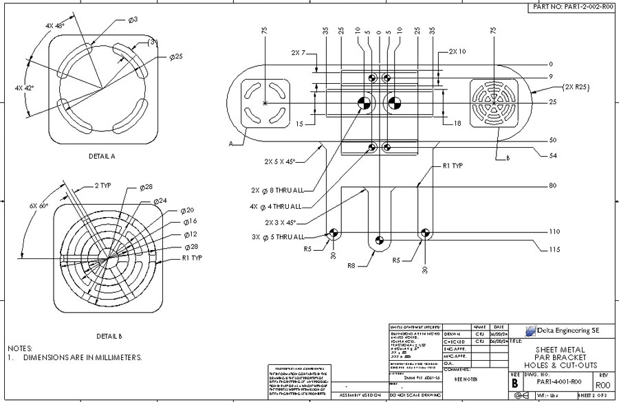
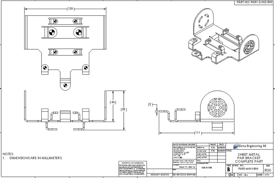
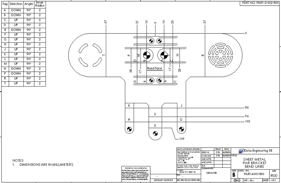
PAR Bracket CAD Drawings Produced With the SolidWorks Sheet Metal Application

.

SolidWorks is used to produce 3D sheet metal CAD models and drawings. The PAR Bracket below can be shown in its flattened configuration to make cutting, bending, drilling easier. If you have rough sketches of products that you would like to be converted into a sheet metal parts, please contact Delta Engineering SE.

.