-
Delta Engineering SE
Mechanical and Ocean Solutions
.
Deluxe Fish Cleaning Table CAD Weldment Drawings
.
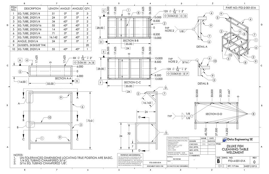
The SolidWorks Weldments application enables weldments to be created in the form of a single multibody part. A 3D sketch defines
the basic weldment shape. Structural members are created along the lines of this 3D sketch, as well as gussets, and
end caps. etc. To create a weldments for your company only requires the overall shape, dimensions, desired structural
members, and the expected loads.
.

.
.
Connect With Us